23 Thomas Elmsley Way, Maungatapere

$1,125,000 Withdrawn

Contemporary Accessible Living

Wheelchair-accessible, architecturally designed home in Maungatapere's prestigious Te Mara Estate. A recent change in circumstances has made this 2023-built masterpiece available.

Set on a 1,964m² flat section of fertile volcanic soil, bordered by lush native bush, this north-facing home enjoys sunlight throughout the day. With only the landscaping and driveway remaining for completion, there's room for you to add your personal touch to this stunning property.

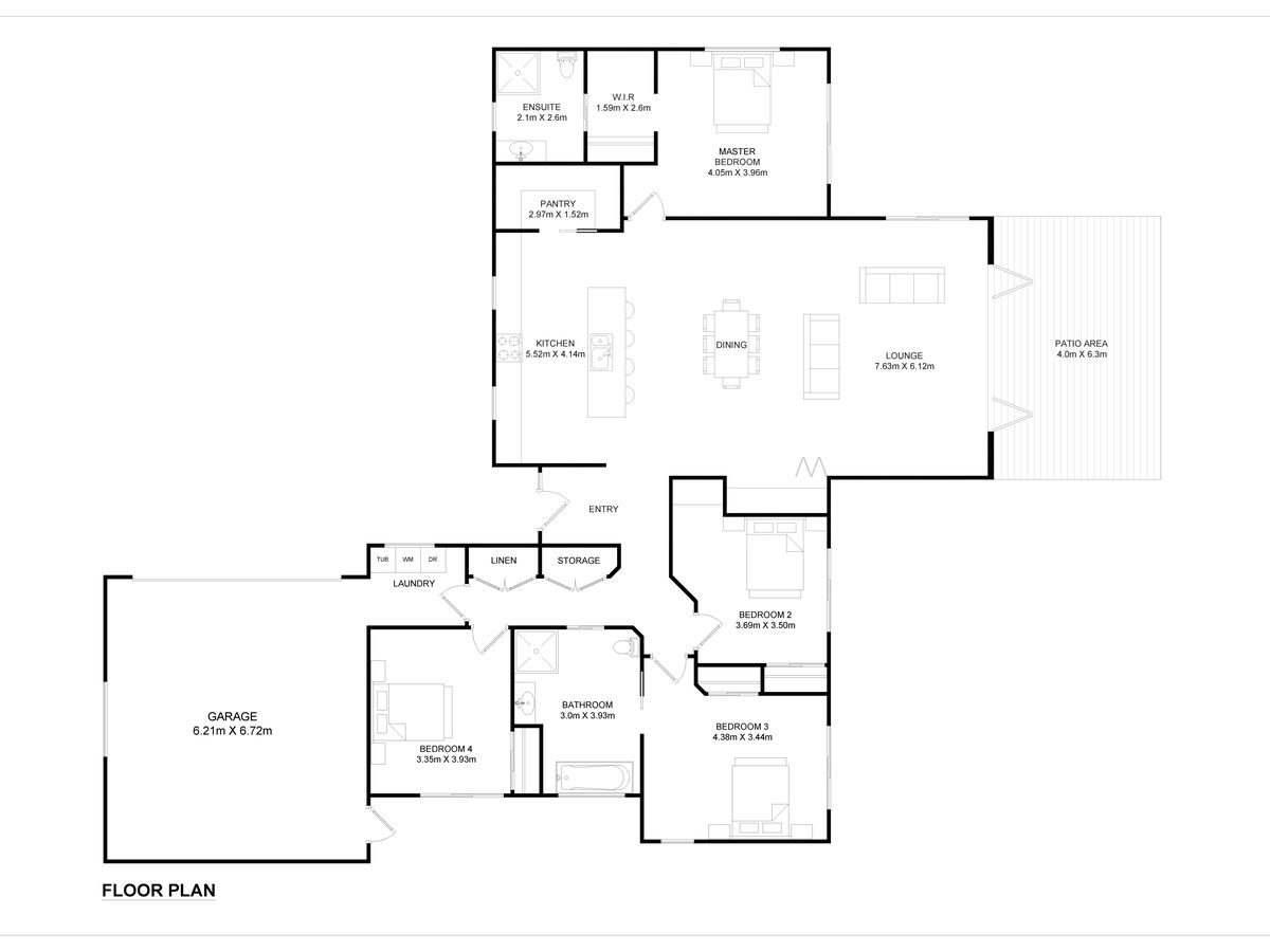
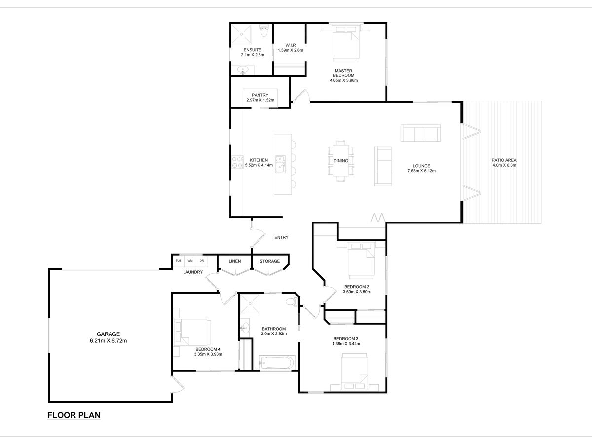
Designed with accessibility in mind, the home features wide doorways and sleek polished concrete floors, allowing for effortless navigation. The large accessible bathroom is thoughtfully equipped with a drive-under vanity, shower seating, and sturdy support rails, ensuring comfort and independence.

The expansive open-plan living area, crowned by a soaring vaulted ceiling, creates an inviting space that floods with natural light through oversized windows. Underfoot, the warmth of underfloor heating, powered by a solar-tied grid system, ensures comfort in every season.

Additional features include town-supplied water, a biocycle waste system, gas hot water, and high-speed fibre internet. The home also offers an impressive walk-in pantry and generous storage throughout.

Located in a sought-after area, this property offers easy access to local amenities, including schools, shops, and parks. The vibrant city of Whangarei is just a short drive away, providing even more dining, shopping, and entertainment options.

Don't miss this opportunity to own a piece of luxury in Maungatapere. Contact us today to arrange a viewing and experience the lifestyle that awaits you at 23 Thomas Elmsley Way.

land size: 1964 m2
Bedrooms: 4
Bathrooms: 2
Garages: 2

property information

main information
  • Property ID: 1479240
  • Bedrooms: 4
  • Price: $1,125,000
  • Bathrooms: 2
  • Land Size: 1964 m2
  • Garage: 2
Additional Features
  • Hydronic Heating
  • Deck
  • Outdoor Entertainment Area
  • Remote Garage
  • Secure Parking
  • Built-in Wardrobes
  • Dishwasher
  • Study
  • Solar Panels

Do you like this offer? Contact me to get more
information!

contact me

I am here to help with all your real estate needs and questions. Let me know what's on your mind and start a conversation.

office
Social