17 Garden Court, Woodhill

Open to offers For Sale

Vacant - Must sell!

Located within a safe, gated community in popular Woodhill, this well-presented brick and tile townhouse offers an easy-care lifestyle with space, privacy, and convenience.

Enjoy peaceful outlooks toward the lush western hills, while being just minutes from Whangārei CBD and the hospital — a highly desirable location for professionals, downsizers, and retirees.

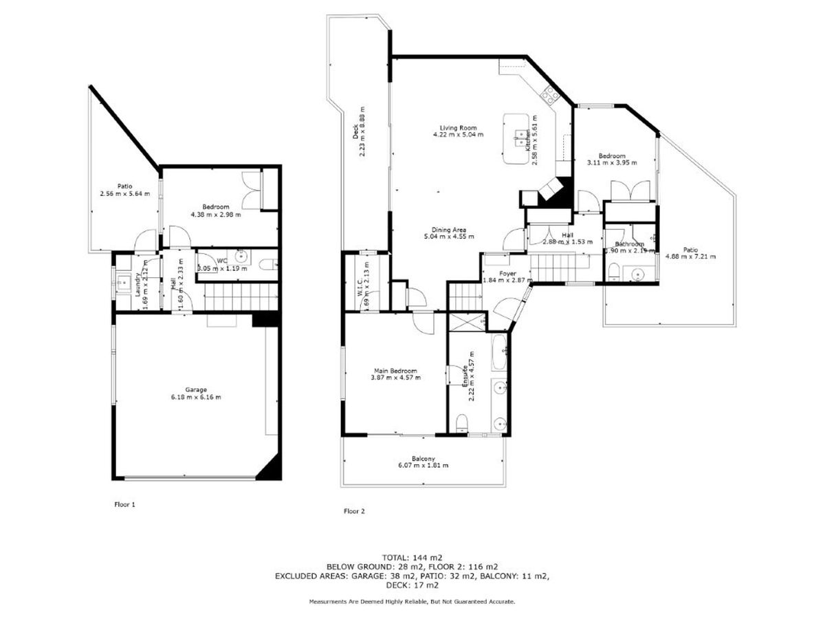
The home features a generous open-plan living and dining area with excellent natural light, complemented by a modern, functional kitchen. Seamless indoor-outdoor flow creates an inviting space to relax or entertain.

Upstairs, you’ll find two well-sized bedrooms, including the master with a large ensuite complete with bath, shower, and double vanity. The master also enjoys access to its own balcony.

The second upstairs bedroom is serviced by a separate family bathroom and has its own access to a courtyard, adding wonderful flexibility and indoor-outdoor connection.

Downstairs offers a third bedroom or flexible guest/home office option, located near the additional toilet — ideal for visitors or those wanting separation from the main sleeping level.

A standout bonus is the separate laundry, with its own external access to a courtyard — practical and convenient for everyday living.

A double internal access garage provides secure parking, excellent storage, and peace of mind.

Key features:
• Brick and tile construction
• Secure gated complex
• Three bedrooms (2 upstairs, 1 downstairs)
• Master with ensuite (bath, shower, double vanity) + balcony
• Separate family bathroom upstairs
• Additional guest toilet downstairs
• Second bedroom with courtyard access
• Separate laundry with outdoor access
• Double internal access garage
• Peaceful hill outlook
• Low-maintenance living
• Central Woodhill location

Properties in this location are tightly held — early viewing is recommended.

land size: 350 m2
Bedrooms: 3
Bathrooms: 2
Garages: 2

property information

main information
  • Property ID: 1719226
  • Bedrooms: 3
  • Price: Open to offers
  • Bathrooms: 2
  • Land Size: 350 m2
  • Garage: 2
Additional Features
  • Air Conditioning
  • Balcony
  • Courtyard
  • Outdoor Entertainment Area
  • Remote Garage
  • Secure Parking
  • Alarm System
  • Broadband Internet Available
  • Built-in Wardrobes
  • Dishwasher

Do you like this offer? Contact me to get more
information!

contact me

I am here to help with all your real estate needs and questions. Let me know what's on your mind and start a conversation.

office
Social